 |
ガーデンシティ狭山弐号館
880万円(税込)
☆内装リフォーム済
☆しっかりした管理体制・ペット飼育可(規定あり)
☆買い物便利・至近に入曽マーケットシティ
☆専用庭付き・御狩場小学校隣接
☆西武新宿線・入曽駅徒歩18分 他バス便有りバス停2分 |
 |
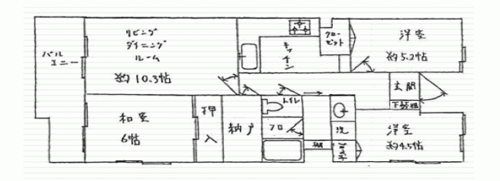
物件概要
●所在地:狭山市大字北入曽755-1-2-105
●土地権利・所有権
●用途地域・準工業地域
●専有面積・65.01u 専用庭在り
●間取り・3SLDK
●構造・鉄骨鉄筋コンクリート造11階建1階部分
●建築・昭和58年11月築
●分譲会社・西武都市開発(株) 日商岩井(株)
●施工会社・長谷川工務店(株) 西松建設(株)
●管理会社・(株)長谷川コミュニティ
●管理形態・全部委託 管理員 日勤
●管理費・月額 8,000円 修繕積立金・月額 11,890円 専用庭使用料・月額 400円
●敷地内駐車場・空き無し トランクルーム・有
●設備・公営水道 都市ガス 本下水 エレベータ有
●引渡し・現況 空室 引渡し時期 即
※図面と現況が異なる場合は現況を優先とします。
|
 |
 |
 |
|
|
|
|
 |
|
 |
|